Architectural – Civil Working

Project Name : Hotel For OYO

Area : Ground Floor

Drawing : Layout Plan

Project Name : Hotel For OYO

Area : Typical Floor Plan

Drawing : Layout Plan

Project Name : Hotel For OYO

Area : Building Section

Drawing : Section A

Architectural Designing Starting From ₹8/Sqtf*

Architectural Designing Will Include All 3D Renders & Workings As Per Your Requirement

Book Your Appointment

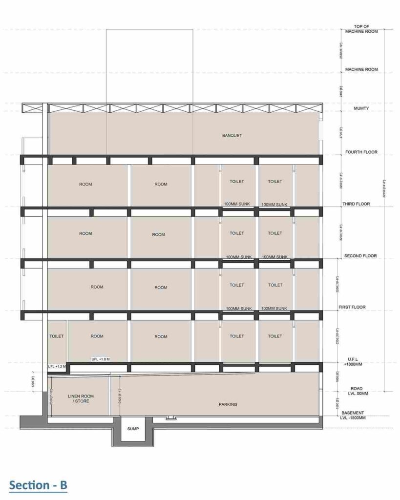
Project Name : Hotel For OYO

Area : Building Section

Drawing : Section B

Project Name : Hotel For OYO

Area : Footing Lvl

Drawing : Column Setout

Project Name : Hotel For OYO

Area : Basement

Drawing : Working Drawing

Project Name : Hotel For OYO

Area : Ground Floor

Drawing : Working Drawing

Project Name : Hotel For OYO

Area : Front Elevation

Drawing : Elevation Detail

Project Name : Hotel For OYO

Area : Side Elevation

Drawing : Elevation Detail

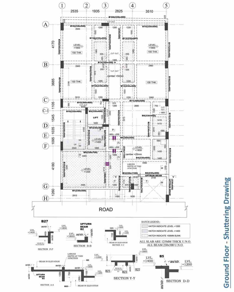
Project Name : Hotel For OYO

Area : Ground Floor

Drawing : Shuttering Drawing

Architectural Designing Starting From ₹8/Sqtf*

Architectural Designing Will Include All 3D Renders & Workings As Per Your Requirement

Book Your Appointment

Project Name : Hotel For OYO

Area : Staircase

Drawing : Staircase & Lvl Details

Project Name : Hotel For OYO

Area : Staircase

Drawing : Staircase overhead Detail

Project Name : Hotel For OYO

Area : Basement

Drawing : Electrical Point Details

Architectural Designing Starting From ₹8/Sqtf*

Architectural & Workings As Per Your Requirement

Book Your Appointment

Project Name : Hotel For OYO

Area : Basement

Drawing : Electrical Wiring Details

Project Name : Hotel For OYO

Area : Basement

Drawing : Fire Fighting & Alarm System