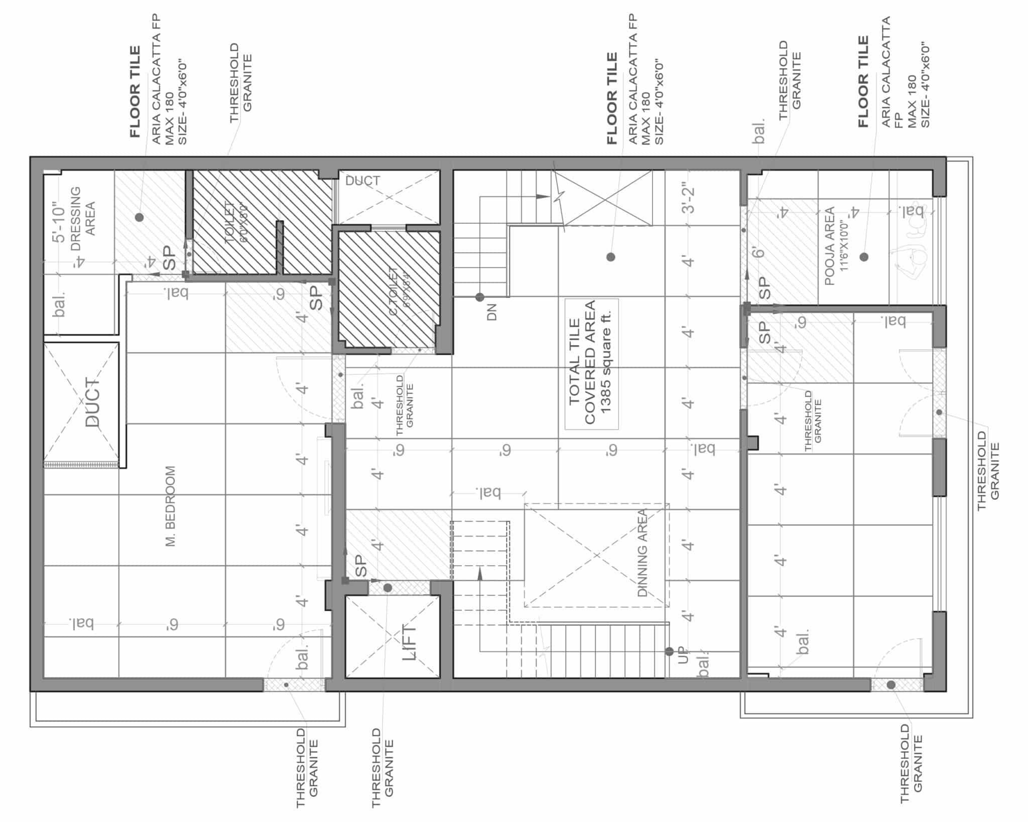
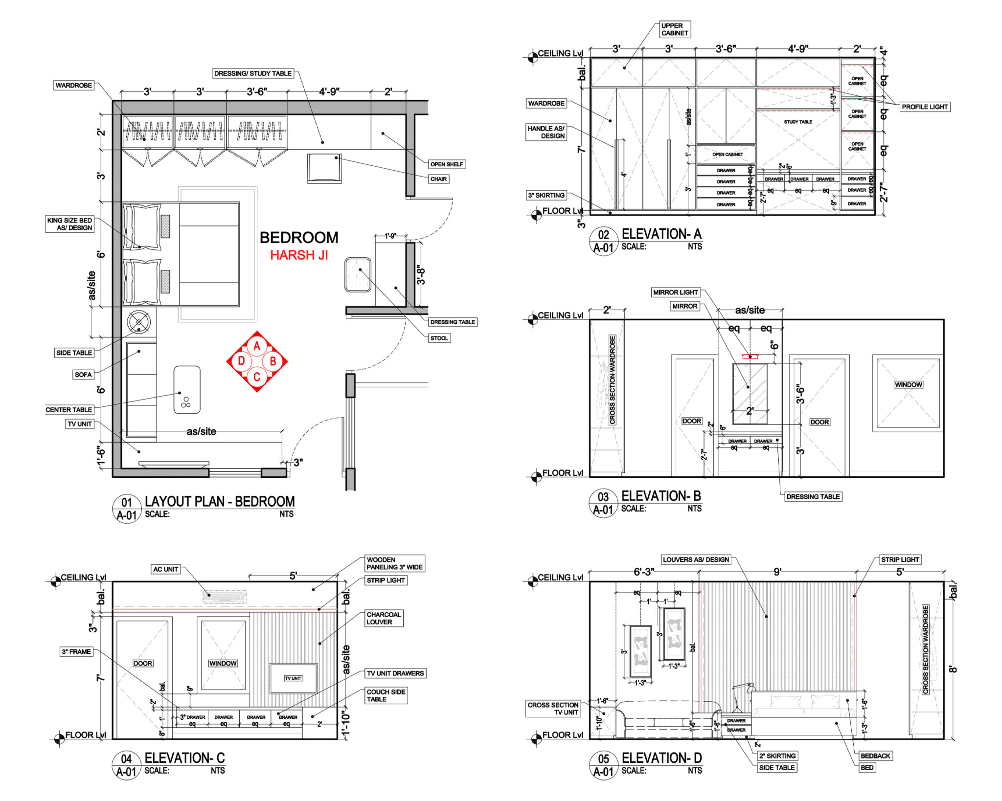
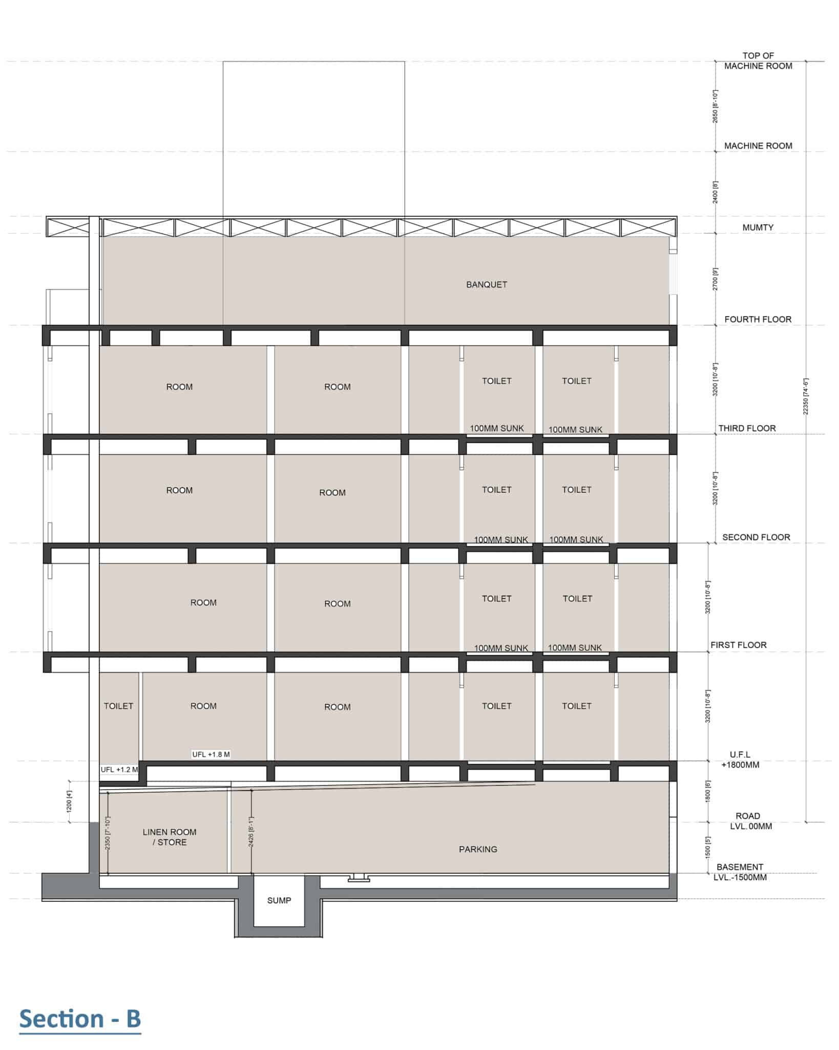
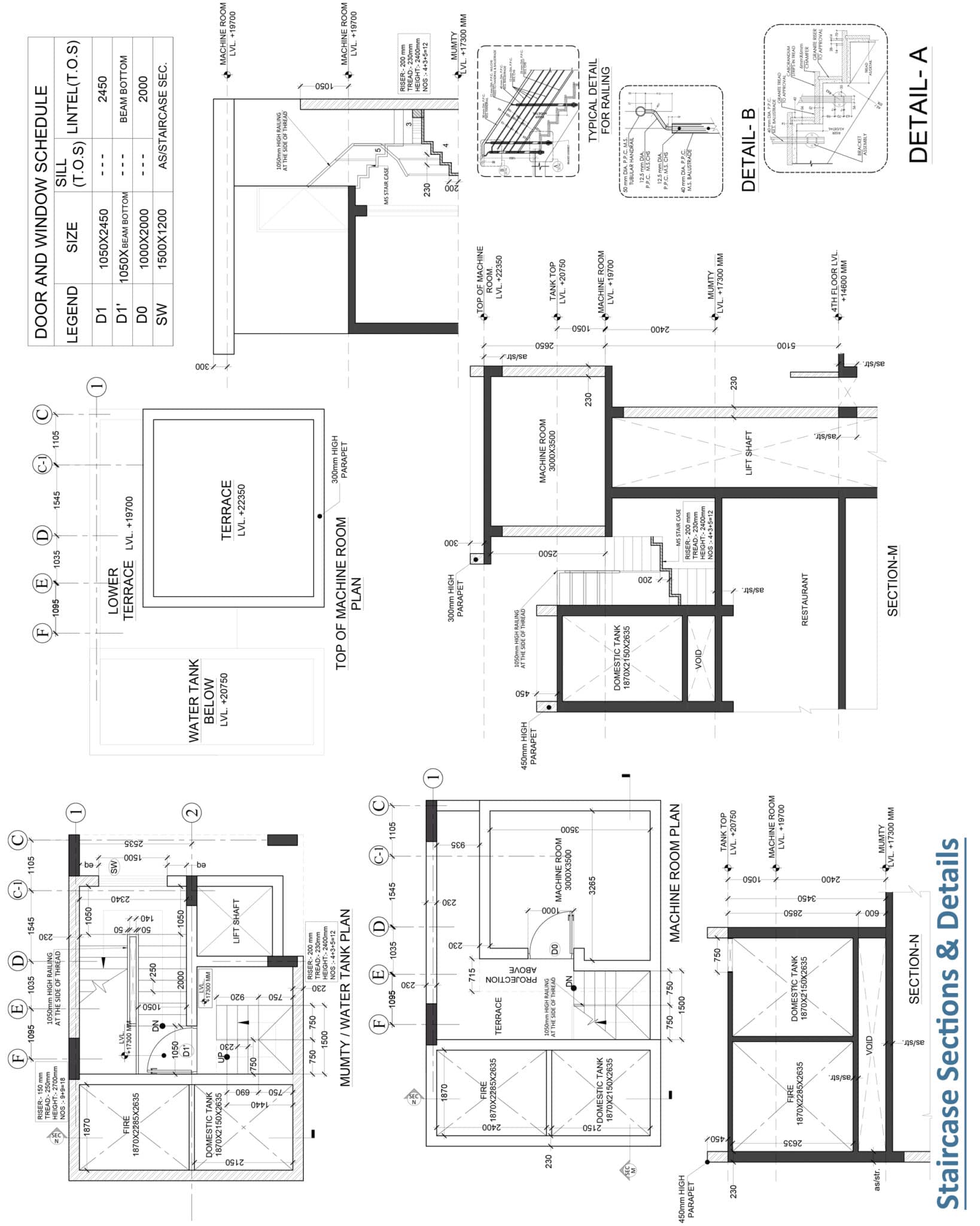
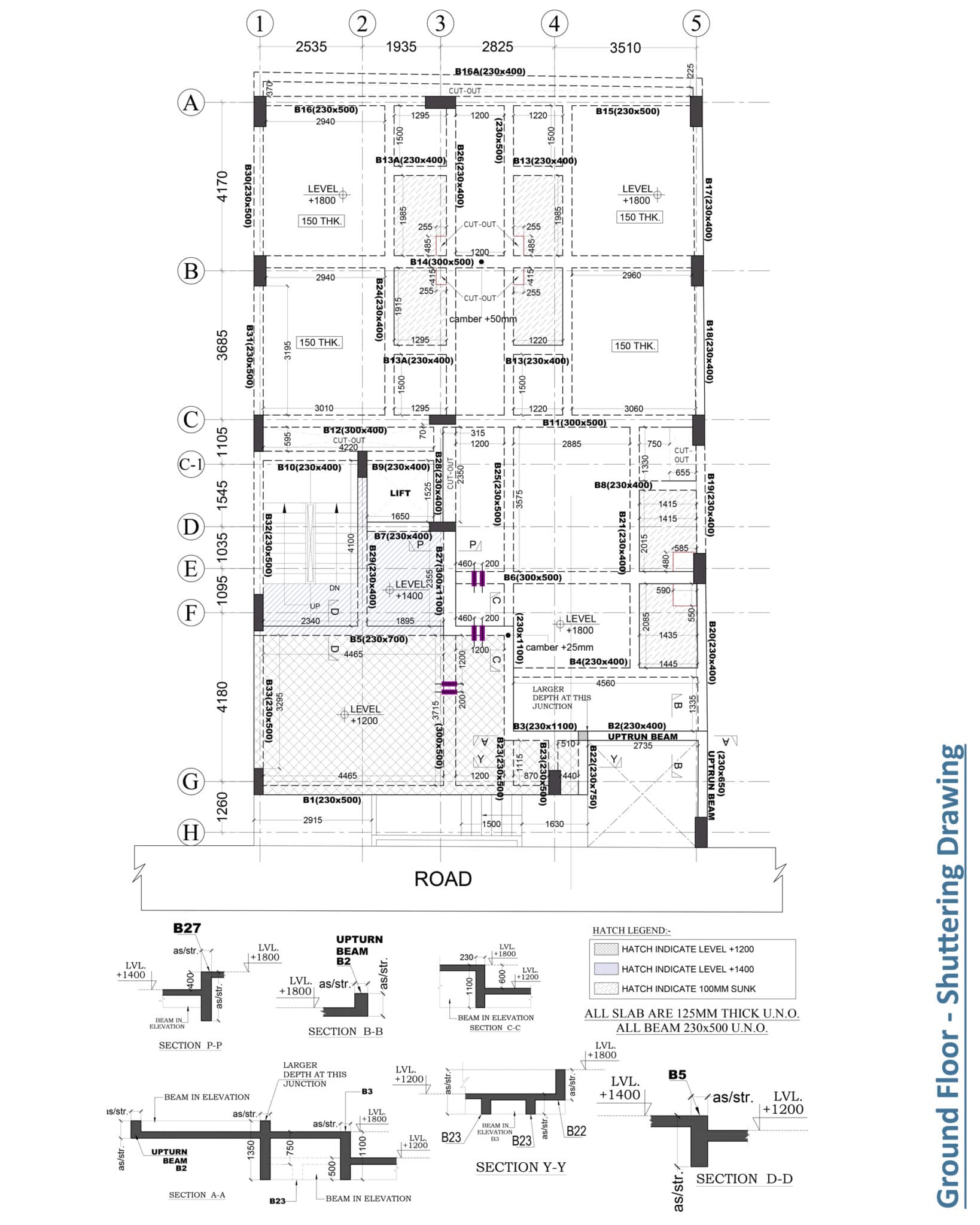
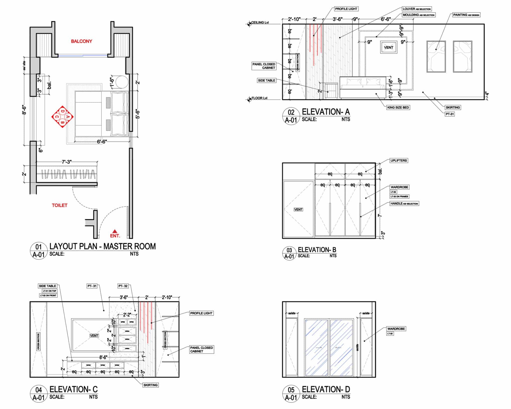
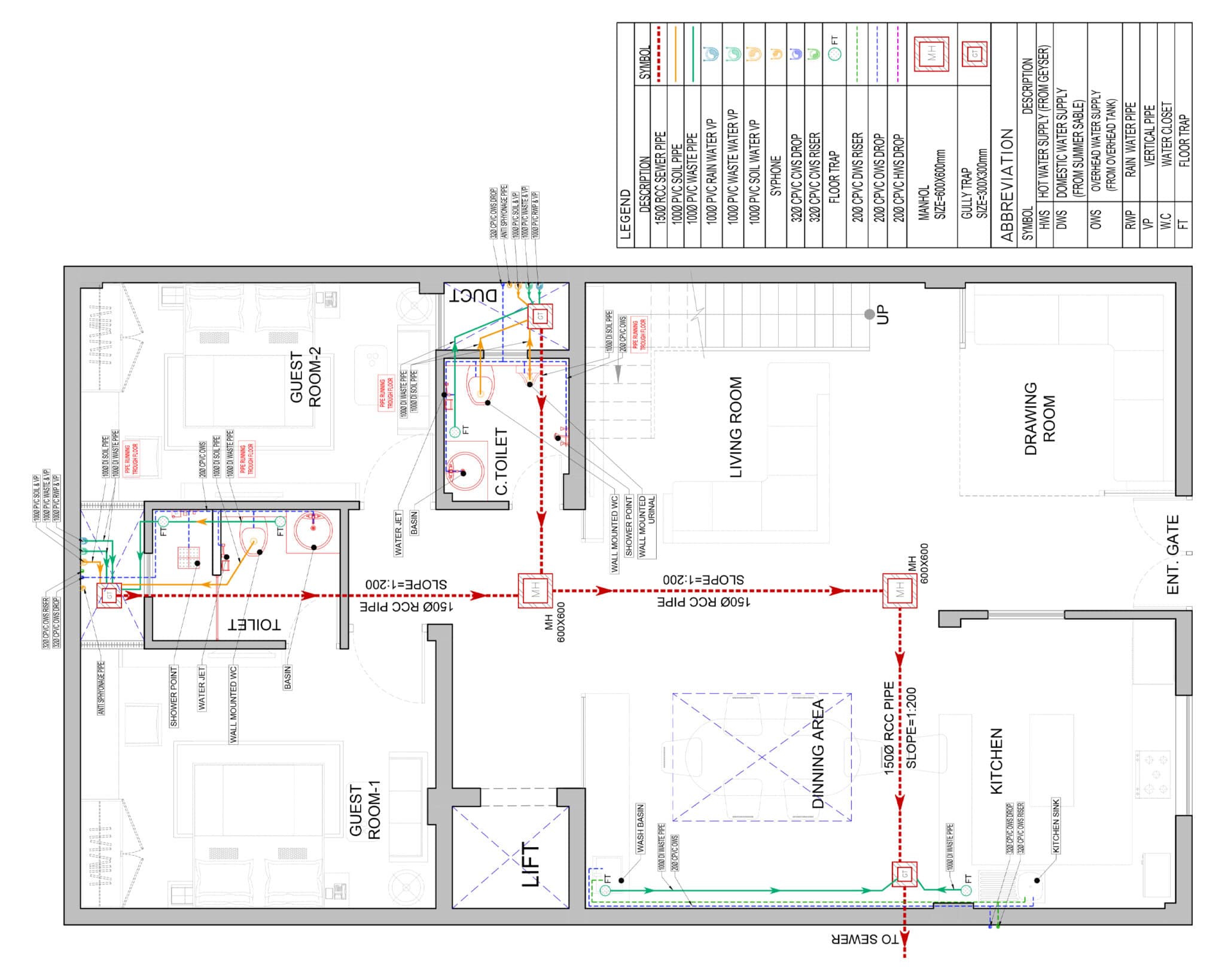
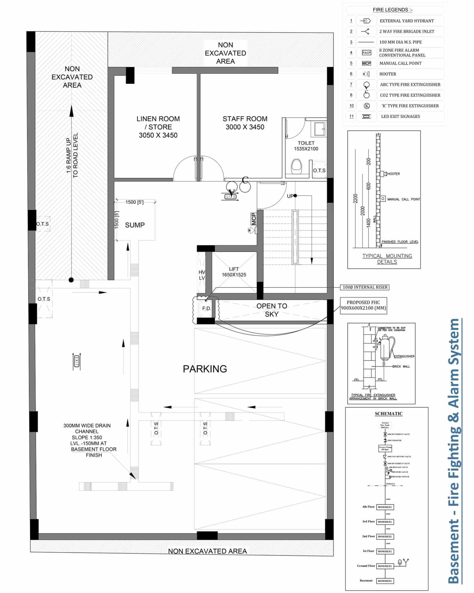
Drawings Floor Plans Interier Working Interier Documentation Package Architectural – Civil Working Get Free Quotation